Alquiler

Local en Bravo Murillo (MADRID)

ID: 005273
8.000 € /mes

Local en alquiler.
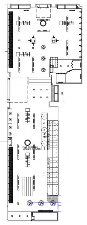
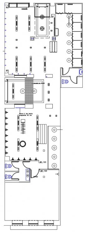
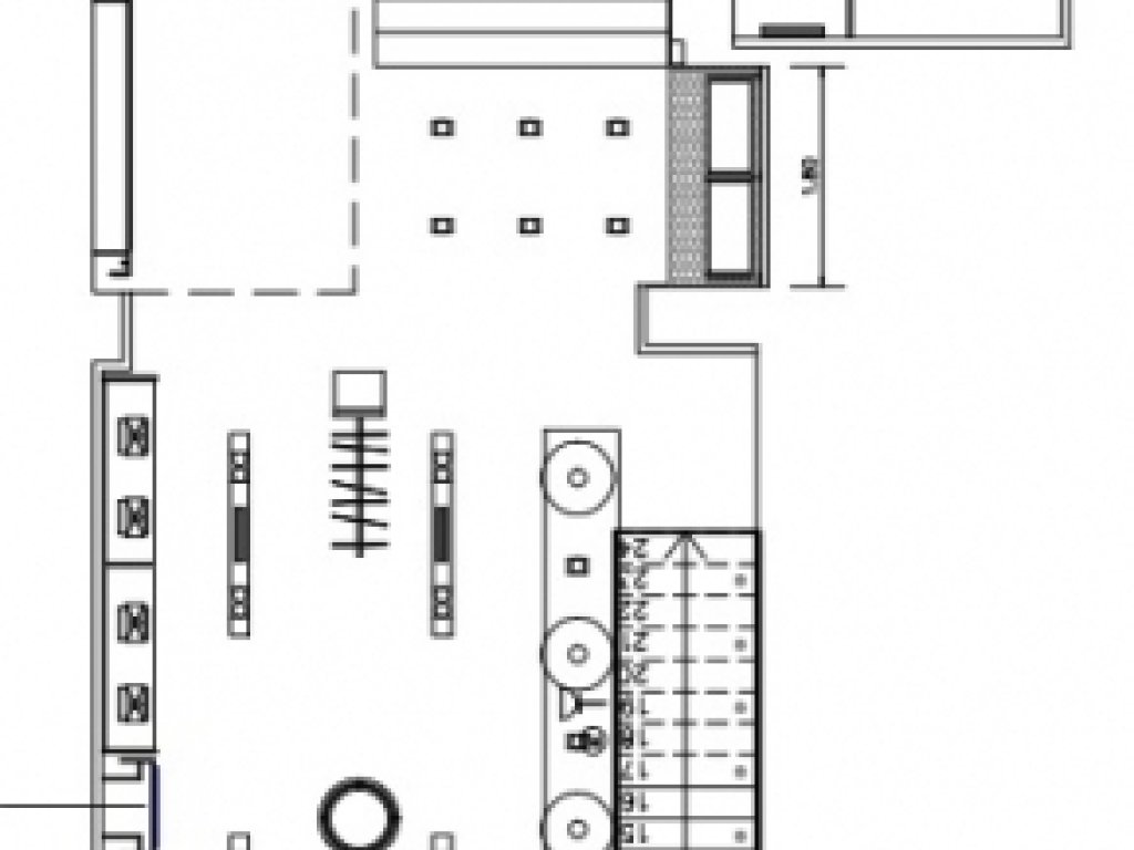
LOCAL: Tiene una superficie catastral total de 354 M², distribuida entre una planta calle diáfana y de uso comercial de 167 M², una primera planta comercial de 166 M² y un sótano de 21 M². Tiene una fachada de 6 ML en doble altura.
La Licencia de instalación de una salida de humos está en trámite, y puede tener terraza.
ZONA: Está situado en la parte más comercial de Bravo Murillo, cerca de la Glorieta de Cuatro Caminos.
Es una zona tradicional de compras, tiene muchísimo paso peatonal y rodado, y en un tramo de ± 300 metros tiene una presencia importantísima de conocidas marcas de:
Comercio, Carrefour Market, Aldi, Lidl, Lola Rey, Etam, Lefties, Orange, Federopticas, Estanco, Óptica Universitaria, Herbolario Navarro, Décimas, Mercado de Maravillas, Granier, General Óptica, La Casa de las Carcasas, Aplauso, Gaes, Tramas +, Optimiza, Marvimundo, Humana,
Servicios, Vitaldent, Banco Santander, Bankinter, Banco Sabadell, farmacias etc.
Hostelería, Mc Donald´s, KFC, Ginos, Vips, Rodilla, 100 Montaditos, Popeyes, Vicio Burger, Burger King, Grosseto, Taco Bell, Wok4You, Little Ceasars Pizza, Rubí, Street Food Burger, Paraiso del Jamón, Palazzo, Vivari, Dunkin´ Donuts, etc..
CONDICIONES: La renta mensual solicitada es de €8.000,-/mes + IVA, negociable.
INFORMACIÓN: Por razones de discreción, no se identifica el local. Previa identificación del interesado, gustosamente enviamos un PDF de presentación, con todos los detalles del local, fotografías interiores, exteriores y planos.

Ubicación

Dirección Bravo Murillo
Código postal 28020
Distrito 06 Tetuán
Ciudad MADRID
Provincia Madrid
Región Comunidad de Madrid
Nivel socioeconómico 01 Medio y Bajo
Nivel comercial Muy comercial
Entorno Residencial, Mercado alimentación, Hostelería, Metro, Autobuses, Comercio

Ver mapa

Dimensiones

Tipo de superficie Catastral
Total m2 354 m2
PlantaSuperficieValoraciónVenta € / m2Alquiler €/m2 / mesAlquiler €/m2 / año
Sótano no Comercial21 m225 %-7,84 €94,03 €
Planta Calle Comercial167 m2100 %-31,34 €376,10 €
1ª Planta Comercial166 m250 %-15,67 €188,05 €
Fachada de 06 a 08 ML
Esquina

Condiciones económicas

Alquiler mensual 8.000 €
€ /m2 / mes 31,34 €
Alquiler anual 96.000 €
€ /m2 / año 376,08 €
Gastos Ordinarios de Comunidad 0 € /mes
TRU Tasa Residuos Urbanos (Anual) 645 €

Otras características

Entrada coches
Aire acondicionado
Salida de humos Diámetro -
Observaciones (salida de humos) La salida de humos está en proyecto, pendiente de Licencia.
Terraza
Año de construcción 1.920 (106 años)
ITE Favorable Siguiente revisión 2.032
Calificación energética En trámite
Ver mi selección

¿Tiene alguna duda?

Contacte con nosotros

Localización